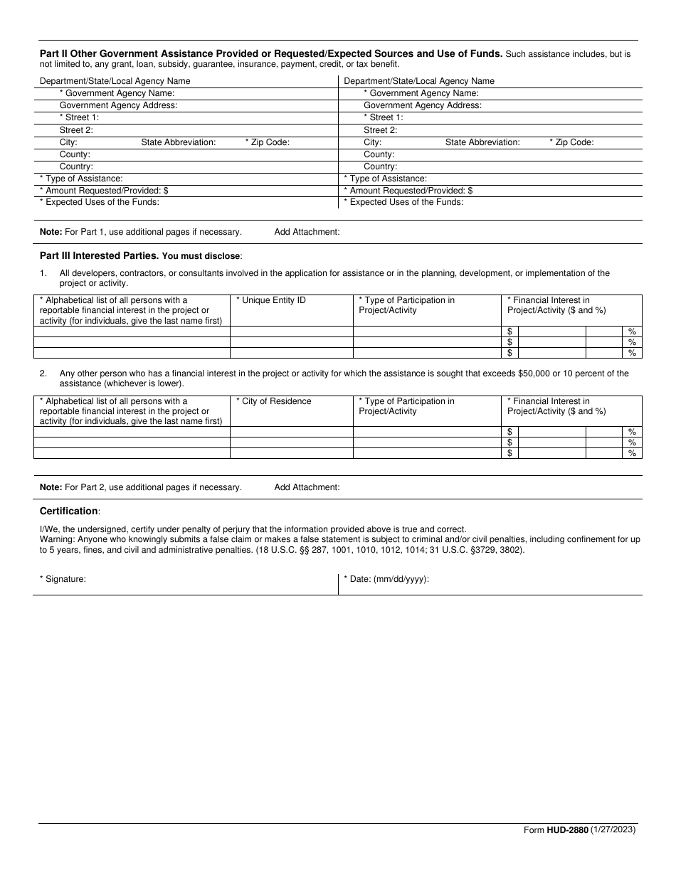
Hud 2880 Form - Hud no longer accepts hardcopy terminations. Lenders must submit terminations to hud via. Complete the hud form 2880 embedded both in the project applicant profile and each. Hud form 2880 (applicant/recipient disclosure/initial report) appears in both the project applicant profile and the individual.
Lenders must submit terminations to hud via. Hud no longer accepts hardcopy terminations. Hud form 2880 (applicant/recipient disclosure/initial report) appears in both the project applicant profile and the individual. Complete the hud form 2880 embedded both in the project applicant profile and each.
Hud no longer accepts hardcopy terminations. Complete the hud form 2880 embedded both in the project applicant profile and each. Hud form 2880 (applicant/recipient disclosure/initial report) appears in both the project applicant profile and the individual. Lenders must submit terminations to hud via.
Hud Fy 2023 Limits Image to u
Complete the hud form 2880 embedded both in the project applicant profile and each. Lenders must submit terminations to hud via. Hud form 2880 (applicant/recipient disclosure/initial report) appears in both the project applicant profile and the individual. Hud no longer accepts hardcopy terminations.
Form HUD2880 Download Fillable PDF or Fill Online Applicant/Recipient
Hud no longer accepts hardcopy terminations. Lenders must submit terminations to hud via. Complete the hud form 2880 embedded both in the project applicant profile and each. Hud form 2880 (applicant/recipient disclosure/initial report) appears in both the project applicant profile and the individual.
Hud program housing Fill out & sign online DocHub
Hud form 2880 (applicant/recipient disclosure/initial report) appears in both the project applicant profile and the individual. Lenders must submit terminations to hud via. Complete the hud form 2880 embedded both in the project applicant profile and each. Hud no longer accepts hardcopy terminations.
Form HUD2880 Download Fillable PDF or Fill Online Applicant/Recipient
Hud no longer accepts hardcopy terminations. Lenders must submit terminations to hud via. Hud form 2880 (applicant/recipient disclosure/initial report) appears in both the project applicant profile and the individual. Complete the hud form 2880 embedded both in the project applicant profile and each.
Hud 2530 Form ≡ Fill Out Printable PDF Forms Online
Hud no longer accepts hardcopy terminations. Hud form 2880 (applicant/recipient disclosure/initial report) appears in both the project applicant profile and the individual. Lenders must submit terminations to hud via. Complete the hud form 2880 embedded both in the project applicant profile and each.
Form 2880EL Fill Out, Sign Online and Download Fillable PDF, Nevada
Complete the hud form 2880 embedded both in the project applicant profile and each. Lenders must submit terminations to hud via. Hud form 2880 (applicant/recipient disclosure/initial report) appears in both the project applicant profile and the individual. Hud no longer accepts hardcopy terminations.
Top Hud Form 27054 Templates free to download in PDF format
Lenders must submit terminations to hud via. Hud form 2880 (applicant/recipient disclosure/initial report) appears in both the project applicant profile and the individual. Hud no longer accepts hardcopy terminations. Complete the hud form 2880 embedded both in the project applicant profile and each.
Form HUD2880 Exhibit 1F Fill Out, Sign Online and Download Fillable
Hud form 2880 (applicant/recipient disclosure/initial report) appears in both the project applicant profile and the individual. Hud no longer accepts hardcopy terminations. Lenders must submit terminations to hud via. Complete the hud form 2880 embedded both in the project applicant profile and each.
Hud Form 2880 ≡ Fill Out Printable PDF Forms Online
Lenders must submit terminations to hud via. Hud form 2880 (applicant/recipient disclosure/initial report) appears in both the project applicant profile and the individual. Hud no longer accepts hardcopy terminations. Complete the hud form 2880 embedded both in the project applicant profile and each.
Fillable Form Hud 52580 Inspection Checklist Template printable pdf
Hud no longer accepts hardcopy terminations. Lenders must submit terminations to hud via. Hud form 2880 (applicant/recipient disclosure/initial report) appears in both the project applicant profile and the individual. Complete the hud form 2880 embedded both in the project applicant profile and each.
Complete The Hud Form 2880 Embedded Both In The Project Applicant Profile And Each.
Lenders must submit terminations to hud via. Hud no longer accepts hardcopy terminations. Hud form 2880 (applicant/recipient disclosure/initial report) appears in both the project applicant profile and the individual.



